Key features:
Keeps your cables neat and tidy.
Use of grommets enhances safety (reduced cable tripping risk.)
Grommets accommodate a wide variety of cable sizes.
Centre section lifts out.
Available in black or white.
Enjoy a clear, clean workspace
These stylish Metal Cable Hole Grommets allow you to maintain a clear, clean workspace by allowing you to route cables through your desk. No more messy or hazardous cables or crawling around under your desk to locate power cables.
We drill two holes for you
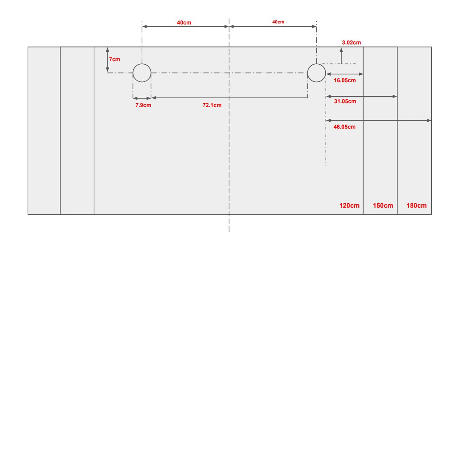
When you order this product, we drill two holes in your desktop (that is in the same order) as per the pictured diagram. The desk will come with 2 metal cable hole grommets of your colour choice.
Location of holes
The 2 grommets are positioned as per the diagram below. If you find this picture too small go to the gallery pictures for this product and scroll through to the positioning diagram. You can then click on that diagram to get an enlarged picture.


Lead time for grommeting
Lead time is approx 3 business days for us to install the Metal Cable Hole Grommets into your desktop.
Specifications:
| Inserts: | Pair of metal 79mm grommet inserts |
| Colours available: | Black or white |
| Holes drilled for you: | Yes, 2 holes |

35,000+ Happy customers across Australia
Need help?
Elevate your work space
Enter your details and receive a $50 voucher for your first desk order plus other exclusive offers.
SUPPORT & POLICIES
UPDOWN DESK AUSTRALIA
Shopping Cart
Got a discount code? Add it at checkout
Same Business Day Dispatch on all Standing Desk & accessories orders received before 12pm
100 Day Money Back Guarantee on all Standing Desks